Biuro Architektoniczne Nowy Sącz, Architekt nowosądecki, Architekt Piwniczna Zdrój, Architekt Rytro, Architekt Barcice, Architekt Stary Sącz, Architekt Nowy Sącz. Architekt Małopolska. Projekt budowlany nowy sącz,
Architekt nowy sącz, Projekt dom pasywny nowy sącz

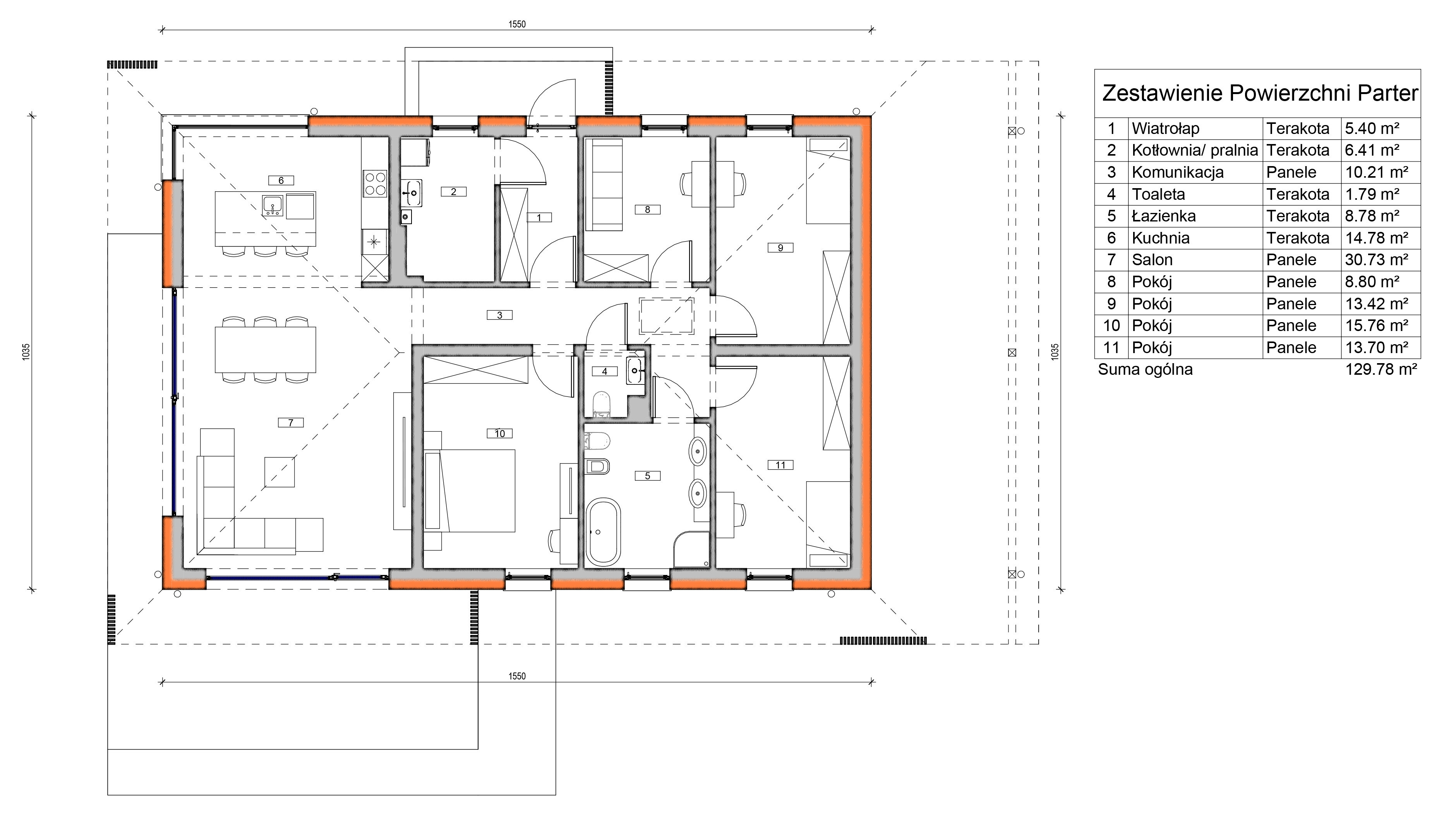
Parterowy dom jednorodzinny w Nowym Sączu

Projekt przedstawia nowoczesny dom jednorodzinny w Nowym Sączu, który łączy funkcjonalność z estetyką. Zlokalizowany w spokojnej okolicy Nowego Sącza, został zaprojektowany z myślą o komforcie mieszkańców i ich codziennych potrzebach.

Przestronne wnętrza o łącznej powierzchni 130 m². W sercu domu znajduje się jasny salon połączony z otwartą kuchnią. Dodatkowo, cztery dobrze doświetlone pokoje dają możliwość aranżacji według indywidualnych potrzeb – mogą pełnić funkcję sypialni, gabinetu czy pokoju gościnnego. Całość dopełniają dwie łazienki oraz praktyczna kotłownia z pralnią.

Naturalne materiały i elegancka estetyka sprawiają, że budynek doskonale wpisuje się w otoczenie. Elewacja łączy ciepłe akcenty drewniane z nowoczesnymi szarościami i czernią, a dach pokryty blachą na rąbek podkreśla minimalistyczny, ale ponadczasowy charakter projektu architektonicznego w Nowym Sączu.

Adres

Biuro Architektoniczne Nowy Sącz, Architekt nowosądecki, Architekt Piwniczna Zdrój, Architekt Rytro, Architekt Barcice, Architekt Stary Sącz, Architekt Nowy Sącz. Architekt Małopolska. Projekt budowlany nowy sącz,
Architekt nowy sącz, Projekt dom pasywny nowy sącz, Projekt dom pasywny nowy sącz
Biuro Architektoniczne Nowy Sącz, Architekt nowosądecki, Architekt Piwniczna Zdrój, Architekt Rytro, Architekt Barcice, Architekt Stary Sącz, Architekt Nowy Sącz. Architekt Małopolska. Projekt budowlany nowy sącz,
Architekt nowy sącz, Projekt dom pasywny nowy sącz
Biuro Architektoniczne Nowy Sącz, Architekt nowosądecki, Architekt Piwniczna Zdrój, Architekt Rytro, Architekt Barcice, Architekt Stary Sącz, Architekt Nowy Sącz. Architekt Małopolska. Projekt budowlany nowy sącz,
Architekt nowy sącz, Projekt dom pasywny nowy sącz, Projekt dom pasywny nowy sącz, Projekt dom pasywny nowy sącz

Leśna 17

Piwniczna - Zdrój, 33 - 350

Kontakt

517 877 993

k.szkaradek3@gmail.com

Menu

Śledź nasy sącz, 

Biuro Architektoniczne Nowy Sącz, Architekt nowosądecki, Architekt Piwniczna Zdrój, Architekt Rytro, Architekt Barcice, Architekt Stary Sącz, Architekt Nowy Sącz. Architekt Małopolska. Projekt budowlany nowy sącz,
Architekt nowy sącz,
Biuro Architektoniczne Nowy Sącz, Architekt nowosądecki, Architekt Piwniczna Zdrój, Architekt Rytro, Architekt Barcice, Architekt Stary Sącz, Architekt Nowy Sącz. Architekt Małopolska. Projekt budowlany nowy sącz,
Architekt nowy sącz,

Podpowiedź:

Możesz usunąć tę informację włączając Plan Premium

Ta strona została stworzona za darmo w WebWave.
Ty też możesz stworzyć swoją darmową stronę www bez kodowania.